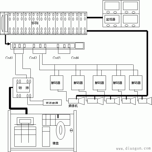
1.视频矩阵 (1)视频矩阵的基本功能和要求 矩阵功能就是实现对输入视频图像的切换输出。将视频图像从任意一个输入通道切换到任意一个输出通道显示。M×N矩阵:表示同时支持M路图像输入和N路图像输出。 (2)视频矩阵的分类 按视频切换方式的不同,分为模拟矩阵和数字矩阵。 模拟矩阵:视频切换在模拟视频层完成。信号切换主要是采用单片机或更复杂的芯片控制模拟开关实现。 数字矩阵:视频矩阵和DVR合二为一,视频切换在数字视频层完成,这个过程可以是同步的也可以是异步的。数字矩阵的核心是对数字视频的处理,需要在视频输入端增加AD转换,将模拟信号变为数字信号,在视频输出端增加DA转换,将数字信号转换为模拟信号输出。视频切换的核心部分由模拟矩阵的模拟开关,变将成了对数字视频的处理和传输。 矩阵主要功能是实现多路信号进,多路信号输出,可以将任意一个输出口进行信号切换,来输出任意一个输入信号。VGA矩阵实现的是多路VGA信号输入,多路信号输出。RGB矩阵是将VGA信号转换成RGB信号来实现矩阵功能。 实际工程中可以看成同一种设备来使用,只需要接上RGB转VGA头就可以了。 按照输入、输出通道的不同,常见的视频矩阵一般有16×4、16×8、16×16、等。常规的理解是乘号前面的数字代表输入通道的多少,乘号后面的数字代表输出通道的多少。不论矩阵的输入输出通道多少,它们的控制方法都大致相同:前面板按键控制、分离式键盘控制、第三方控制(RS-232/422/485等)。 设计一个视频矩阵的基本原则也是根据信号源和显示终端数量的多少以决定矩阵的通道数,由于矩阵规格的差异(通道数的多少)在价格上的体现非常明显,在预算一定的情况下,选择矩阵通道数对扩展影响较大。 (3)矩阵的选择 选择视频矩阵主机时首先要确定需要控制的摄像机个数,是否需要扩充,把现有的和将来有可能扩充的摄像机数目相加,选择控制器的输入路数。比如学校工业中心监控系统建设中,监控点有15个,可是监视器只有6个,以后监视点还会扩展到25个,那么最少也要有25路视频输入给控制主机,(由于控制主机大部分以输入、输出模块形式扩充,输入以8的倍数递增)所以需要选择32输入主机。 (4)矩阵键盘连接示意图:
图1.4.2矩阵键盘连接示意图 说明:
|
mon——选定一个临视器 |
cam——选定一个摄像机 |
|
last——自动切换逆运行等方向 |
next——自动切换正运行方向 |
|
run——运行自动切换 |
time——切换停留时间 |
|
on——启动功能 |
off——关闭功能 |
|
aux——辅助功能 |
shot——调用预置点 |
|
alarm——设防报警触点 |
net——网络矩阵 |
|
ack——功能确认 |
shift——上档键 |
|
open——打开镜头光圈(iris ) |
close——关闭镜头光圈(iris-) |
|
near——调整聚集(focus ) |
far——调整聚焦(focus-) |
|
wide——获得全景图像(zoom ) |
tele——获得写图像(zoom-) |
1) 视频连接 所有的视频输入(如摄像机),应接到视频输入模块(VIM)的BNC上;所有的视频输出(如监视器),应接到视频输出模块(VOM)的BNC上。 所有视频联接应使用带BNC插头高质量75Ω视频电缆。所有的视频输出必须在连接中最后一个单元接75Ω终端负载。中间单元必须设置为高阻.如果不接负载,图像会过亮。相反,如果接了两倍负载,图像会过暗。 
2) 控制数据线连接 控制数据线从矩阵系统后面板通讯端口输出,它发送切换和控制信号到其它机箱,数据线在输入和输出机箱之间环形连接。数据线还向摄像机提供云台、镜头、辅助开关和预置点的控制信号。矩阵系统端口终端说明: CODE1:主要用于连接键盘、报警 主机、多媒体控制器等设备; CODE2:主要用于连接解码器、智能高速球、码分配器、码转换器等 设备; CODE3:主要用于连接网络矩阵主 机; CODE4:主要用于连接计算机、DVR等设备; 2.RS-485通讯 RS-485总线,在要求通信距离为几十米到上千米时,广泛采用RS-485 串行总线标准。RS-485采用平衡发送和差分接收,因此具有抑制共模干扰的能力。加上总线收发器具有高灵敏度,能检测低至200mV的电压,故传输信号能在千米以外得到恢复。 RS-485采用半双工工作方式,任何时候只能有一点处于发送状态,因此,发送电路须由使能信号加以控制。RS-485用于多点互连时非常方便,可以省掉许多信号线。应用RS-485 可以联网构成分布式系统,其允许最多并联32台驱动器和32台接收器。 视频监控系统中的485多为双线传输A 、B-,布线时标准应严格按照所谓的菊花链方式布线,即把控制总线看作一条线的话,那幺是典型的串联方式,就像挂灯笼一样,见一个挂一个;在总线上,可以明确区分出最近和最远点的解码器,若总线距离很远可能还要在总线最末端加120欧匹配电阻。这是由485信号的传输方式所决定的,任何厂家的产品只要采用的是485的控制方式,都必须遵循这一规则,否则在实际的现场中,会出现许多奇怪的问题,实际中常见这种布线导致的解码器失控现象。  3.矩阵键盘功能说明
|
MOV——选定一个监视器 |
CAN——选定一个摄像机 |
|
LAST——自动切换逆行方向 |
NEXT——自动切换正运行方向 |
|
RUN——运行自动切换 |
TIME——切换停留时间 |
|
ON——启动功能 |
OFF——关闭功能 |
|
AUX——辅助功能 |
SHOT——调用预置点 |
|
ALARM——设防报警触点 |
NET——网络矩阵 |
|
ACK——功能确认 |
SHIFT——上档键 |
|
OPEN——打开镜头光圈 |
CLOSE——关闭镜头光圈 |
|
NEAR——调整聚焦 |
FAR——调整聚焦 |
|
WIDE——获得全景图象 |
TELE——获得特写图象 |
|
万向区——控制云台上下左右方向 |
数字区——用于输入数据 |
4.键盘矩阵工作模式 键盘工作模式主要在直接控制解码器、智能高速球中应用。要进入此种工作模式,改变ID中8号端子为“ON”。 波特率选择设置:改变ID中的5、6号端子,就能设置键盘的波特率值。波特率的选择是为了使键盘与控制设备之间有相同的数据传输速度。
表1.4.1波特率选择设置
拨码开关位置 5 6 |
波特率 |
拨码开关位置 5 6 |
波特率 |
|
1 0 |
1200 |
1 1 |
4800 |
|
0 1 |
2400 |
0 0 |
9600 |
控制协议:改变ID 中的1、2、3、4号,在波特率相同的情况下,就能控制不同控制协议的解码器,智能高速球。
表1.4.2控制协议设置
| 序号 |
1 2 3 4 |
控制协议 |
|
1 |
0 0 0 0 |
派尔高(PELCO—D) |
|
2 |
1 0 0 0 |
派尔高(PELCO—P) |
|
3 |
0 1 0 0 |
艾立克,亚安(ALEC,YAAN) |
|
4 |
1 1 0 0 |
三星(SAMSUNG) |
|
5 |
0 0 1 0 |
HC(Hanci) |
|
6 |
1 0 1 0 |
盟威(Mainvan) |
5. 键盘与小型系统连接示意图: 
图1.4.6 键盘与小型系统连接示意图
键盘接线盒至系统的通讯为普通带屏蔽的二芯双较线,距离最长1200米。
|