PLC的模板安装与机架扩展

时间:2023-03-15来源:佚名
S7-300系统采用采用模板式结构,用搭积木的方式组成系统。各模板安装在标准DIN机架上,每个机架上按电源模板PS、CPU模板、接口模板IM、信号模板SM和功能模板FM(1个机架上最多安装8个)的组合次序安装系统内各个模板,所有的模板都通过背板总线连接器级联。
PLC的模板安装与机架扩展
S7-300各模板安装与扩展机架

当需要的信号模板SM超过8个,可通过接口模板IM连接安装扩展机架,一个S7-300系统最多可安装3个扩展机架,32个信号模板。

一、电源模板

电源模板PS型号是PS307,用于将120V/230V交流电压转换为24V直流电压,根据输出电流值有2A、5A、10A等3种规格可供选择。电源模板安装位置在机架最左端的插槽上。

PLC的模板安装与机架扩展

电源模板PS307面板

二、CPU模板

1.标准型CPU系列
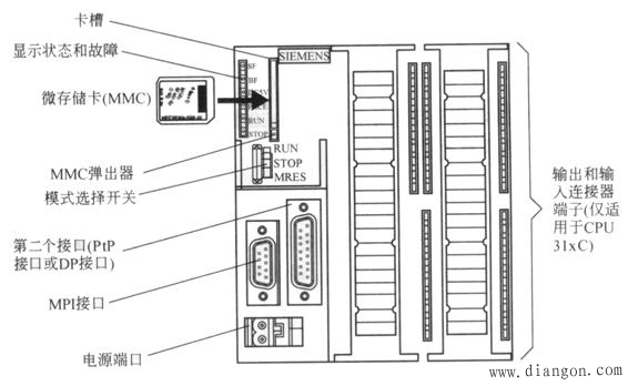
标准型CPU模板为CPU31x系列,其面板见图。面板上有各类控制开关、状态指示灯、插槽及电源端口等。

PLC的模板安装与机架扩展

S7-300的CPU面板

1)状态指示灯
不同颜色的LED指示灯表示了CPU的各种运行状态。
SF—红色,系统故障指示;
BF(或BATF)—红色,后备电池故障指示,没有电池或电池电压不足时亮;
DC5V—绿色,表示内部5V工作电压正常;
FRCE—黄色,强制(FORCE),表示至少有一个输入或输出被强制;
RUN—绿色,在CPU起动(START UP)时闪烁,在运行时长亮;
ST0P—橙色,在停止模式下长亮,慢速闪烁(0.5Hz)表示请求复位,快速闪烁(2Hz)表示正在复位。
2)模式选择开关
RUN—运行模式。开关在此位置时,编程器可以监控CPU的运行,也可以读程序;但不可以命令CPU RUN或STOP,不可以改写程序,在此位置可以拔出钥匙;
STOP—停止模式。CPU不扫描用户程序,开关在此位置时,编程器可以读写程序,可以拔出钥匙;
MRES—存储器复位模式(MEMORY RESET)。开关不可以自然停留在此位置上,一旦松手,开关自动弹回STOP位置。
3)微存储器卡槽
旧型号的CPU面板上有FEPROM插槽,新型号CPU面板取消了电池和FEPROM插槽,代之以微存储器(MMC)卡,由于MMC存储容量大(64KB~8MB),不仅可以存程序,甚至可以存整个项目(Project)。
4)接口与端口
MPI—Multi-Point Interface,也称编程口。可以接入编程器或其它设备;
DP(PtP)—PROFIBUS DP网络的接口或P点对点连接(oint to Point)接口。该接口是否存在,或是哪种接口,取决于CPU的型号;
电池盒—可以装入锂电池,在停电时保存程序和部分数据。
2.CPU型号

S7-300的CPU型号很多且不断更新,所以只列出CPU3x系列部分型号的技术参数,见表。其中CPU3x-2DP表示该CPU模板上集成有现场总线(PROFIBUS-DP)通信接口。

标准型CPU模板主要技术特性

型号

CPU313

CPU314

CPU315

CPU315-2DP

CPU316

CPU318-2DP

装载存储
器(KB)

RAM

20

40

80

96

192

64

E2PROM

最大256

最大512

最大512

最大512

最大512

最大4096

工作存储器(KB)RAM

12

24

48

64

128

512

指令执行时
间(mm)

位操作

0.6

0.3

0.3

0.3

0.3

0.1

字操作

2

1

1

1

1

0.1

定点加

3

2

2

2

2

0.1

浮点加

60

50

50

50

50

0.6

最大数字I/O点数

128

512

1024

1024

1024

8192

最大模拟I/O通道数

32

64

128

128

128

128

最大配置

1个机架
8块模板

4个机架
32块模板

4个机架
32块模板

4个机架
32块模板

4个机架
32块模板

4个机架
32块模板

定时器

128

128

128

128

128

512

计数器

64

64

64

64

64

512

位存储器

2048

2048

2048

2048

2048

8192

3.集成型CPU系列
集成型CPU模板为CPU31xIFM系列,在标准型CPU模板上集成了部分I/O接口、高速计数器和部分控制功能,目前有CPU312IFM和CPU314IFM两种型号。
4.紧凑型CPU系列
紧凑型CPU模板为CPU31xC系列,是在CPU31xIFM系列基础上推出的功能更强、结构更紧凑的CPU模板。该CPU模板配置有MMC卡(Micro Memory Cart,微存储卡)和9针MPI(Multi Point Interface,多点通信接口),有的还配置了9针DP(Decentral Peripherals分散外围设备)接口,或15针PtP(Point to point点对点)接口。
5.故障安全型CPU系列
故障安全型CPU模板为CPU31xF系列,是具有更高可靠性的CPU模板,主要有CPU315F和CPU317F-2DP两种型号。

三、接口模板

接口模板IM用于S7-300系列plc的中央机架到扩展机架的连接。
1.接口模板IM365
IM365用于连接中央机架与1个扩展机架,由两块模板组成,中央机架上插入一块,通过1m的连接电缆和另一块插入扩展机架的IM365相连接。
2.接口模板IM360/361
当扩展机架超过1个时,将接口模板IM360插入中央机架,扩展机架上均插入接口模板IM361,相互之间通过连接电缆相连。机架扩展时,相邻机架间隔距离一般为4cm~6cm。

四、数字量信号模板

1.数字量输入模板SM321
数字量输入模板(DI)将现场的数字信号电平转换成PLC内部信号电平,经过光电隔离和滤波后,送到输入缓冲区等待CPU采样,采样后的信号状态经过背板总线进入输入映像区。根据输入信号的极性及其端子数,SM321共有14种数字量输入模板,常用的4种见表。

常用SM321数字量输入模板技术特性表

技术特性

直流16点
输入模板

直流32点
输入模板

交流8点
输入模板

交流32点
输入模板

输入端子数

16

32

8

32

额定负载电压(V)

DC24

DC24

负载电压范围(V)

20.4~28.8

20.4~28.8

额定输入电压(V)

DC24

DC24

AC120

AC120

输入电压为1的范围

13~30

13~30

79~132

79~132

输入电压为0的范围

-3~ 5

-3~ 5

0~20

0~20

输入电压频率(Hz)

47~63

47~63

隔离(与背板总线)方式

光耦合器

光耦合器

光耦合器

光耦合器

输入电流为1的信号(mA)

7

7.5

6

21

最大允许静态电流(mA)

1.5

1.5

1

4

典型输入延迟 (ms)

1.2~4.8

1.2~4.8

25

25

背板总线最大消耗电流(mA)

25

25

16

29

功率损耗(W)

3.5

4

4.1

4.0

数字量输入模板SM321(直流16点)的每个输入点有1个绿色发光二极管显示输入状态,输入开关闭合时有输入电压,二极管亮。

PLC的模板安装与机架扩展

直流16点数字量输入模板SM321外观图

2.数字量输出模板SM322
数字量输出模板(DO)将S7-300内部信号电平转换成现场外部信号电平,可直接驱动电磁阀线圈、接触器线圈、微型电动机、指示灯等负载。根据负载回路使用电源的要求,数字量输出模板可分为直流输出模板(晶体管输出方式)、交流输出模板(晶闸管输出方式)和交直流两用输出模板(继电器输出方式)等。
3.数字量输入输出模板SM323

数字量输入输出模板(DI/DO)在一块模板上同时具有数字量输入点和输出点。SM323有两种模板,一种带有8个共地输入端和8个共地输出端;另一种带有16个共地输入端和16个共地输出端,两种模板的输入输出特性相同:I/O额定负载电压DC24V、输入电压“1”时信号电平为11~30V、“0”时信号电平为-3~ 5V、额定输入电压下输入延迟为1.2~4.8ms、与背板总线通过光耦合器隔离。

    相关阅读

    开关量传感器的工作原理

    温度开关 开关量传感器 主要是应用于数字量控制,它是由传感接收、信号处理、驱动输出等三个部分组成。形状有圆形、方形、槽形等,输出形式为电流或无源的继电器 接点。 差压开...
    2023-03-10
    开关量传感器的工作原理

    什么是三相五线制,三相五线制的分类标准

    三相五线制的概念 三相五线制包括三相电 的三个相线(A、B、C线)、中性线(N线);以及地线(PE线)。 中性线(N线)就是零线 。三相负载对称时,三相线路流入中性线的电流矢量和为零,但对...
    2022-12-10

    蓄电池接线柱损伤的维修方法

    电池俗称电瓶,广泛应用于交通、电力 、通讯等领域,社会拥有量较大,常因接线头与蓄电弛接钱柱之间松动、腐蚀而造成接触不良,无法正常投入使用.本文介绍一种简单有数的修理方法...
    2023-03-18
    蓄电池接线柱损伤的维修方法

    三相异步电动机星三角接法错误后果会怎么样?

    三相鼠笼式异步 电动机 是当前工矿企业中应用最广泛的电动机 ,其电机绕组的接线方法分星形接法Y和三角形接法Δ,下面介绍错误接线带来的后果。 1.定子绕组星形运行的电动机,其...
    2023-03-05
    三相异步电动机星三角接法错误后果会怎么样?

    自锁和互锁的几点区别

    电机的基本控制藏有三把锁,这三把锁分别是自锁、互锁、联锁,这三把锁在电机控制的整个环节起到至关重要的作用,必须了解清楚它们在电路控制中的逻辑关系,以及二者的区别有...
    2022-11-28
    自锁和互锁的几点区别

    热销商品

    加厚abs安全帽电工建筑工地程施工领导监理透气防砸头盔可印字V型

    这款加厚ABS安全帽专为电工、建筑工地施工人员、领导及监理设计,采用高强度ABS工程塑料,抗冲击、防砸性能优异,有效保障头部安全。帽体加厚设计,增强耐用性与防护等级...
    5.8

    水口钳高硬度模型剪钳电子钳工业级口水剪斜嘴钳偏口斜口专用钳子

    水口钳高硬度模型剪钳是一款工业级精密工具,专为电子、模型制作及精细作业设计。采用优质高碳钢材质,经热处理工艺打造,具备卓越的硬度和耐磨性,可轻松剪切金属引脚、...
    4.8

    170电子剪钳II 如意斜口钳 工业斜嘴钳水口钳 模型剪塑胶钳尖嘴钳

    170电子剪钳II如意斜口钳是一款专业级精密工具,集工业斜嘴钳、水口钳、模型剪、塑胶钳与尖嘴钳功能于一体,适用于电子维修、模型制作、手工艺及精密作业。其采用优...
    4.5

    安全帽国标工地加厚施工领导透气安全头盔建筑工程监理免费印字

    本款安全帽严格遵循国家GB 2811-2019标准,专为建筑工程、工地施工及监理人员设计。采用高强度ABS工程塑料,加厚壳体有效抗冲击,保障头部安全。帽体轻盈透气,内置可调...
    10

    包邮三角型简易螺丝刀三角十字螺丝刀螺丝批改锥起子五金工具5mm

    这款5mm三角型简易螺丝刀,专为拧紧或拆卸三角形螺丝设计,适用于电子维修、家电维护及精密仪器装配等场景。采用优质合金钢材质,刀头硬度高、耐磨损,确保长久使用不变...
    3.64

    网站栏目