自动喷洒消防泵的电气控制原理
时间:2023-03-15来源:佚名
|
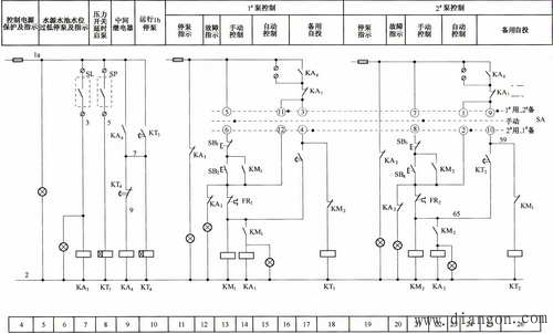
自动喷洒用消防泵受水路系统的压力开关或水流指示(继电)器直接控制,延时启泵,或者由消防中心控制启停泵。 自动喷洒用消防泵一般为两台泵一用一备,互为备用,工作泵故障,备用泵延时自动投入运行的形式。 ![]() 自动喷洒消防泵一用一备电气控制电路 发生火灾时,喷洒系统的喷头自动喷水,设在主立管上的压力继电器(或接在防火分区水平干管上的水流继电器)SP接通,其常开触头SP(1a-5)[8]闭合,使通电延时时间继电器KT3[8]得电吸合。经延时,KT3的延时闭合的常开触头KT3(1a-7)[10]闭合,使中间继电器KA4[9]和通电延时时间继电器KT4[10]得电吸合并自锁。若万能转换开关SA置于1#泵用2#泵备的位置,则1#泵的接触器KM1得电吸合,1#泵启动向系统供水。如果此时1#泵故障,接触器KM1跳闸,使2#泵控制电路中的时间继电器KT2得电吸合,经延时,KT2的延时闭合的常开触头KT2(65-59)[25]闭合,KA4的常开触头[25]已闭合,使接触器KM2得电吸合,2#泵作为备用泵启动向自动喷洒系统供水。当水泵作为备用泵运行时,水泵过负荷热继电器不再使接触器跳闸,只发出报警信号。 |








