|
本文全面梳理低压配电系统核心补偿元器件,包括有源滤波模块(APF)、静止无功补偿模块(SVG)、低压串联电抗器的核心功能、技术参数、选型方案、价格信息及安装要求,为无功补偿与谐波治理系统设计、选型及运维提供参考。
一、有源滤波模块(APF系列)
有源滤波模块是动态滤除谐波、补偿无功的电力电子装置,可实时治理2~50次谐波,兼顾无功补偿与三相不平衡校正,适配工业与民用低压配电系统。

(一)APF系列(工业/通用型)
1.核心特点
动态响应快,瞬时响应时间≤100μs,全响应时间≤10ms;支持谐波补偿、无功补偿、三相不平衡补偿三重功能,功率因数可设定;具备过压、过流、欠压、过温等多重保护,过载时自动限流至100%额定输出;支持本地/远程操作,RS485通讯(Modbus-RTU协议),可配置物联网云平台监控。

电气特征:系统电压:AC480V(±10%);频率:50/60Hz(±5%)。
组线形式:三相三线/三相四线
补偿容量:50A、75A、100A、150A、200A(可定制);谐波次数:2~50次(可单独设定)。
补偿方式:谐波补偿、无功补偿、三相不平衡补偿;功率因数校正,可设定。
保护功能:过载、过压、过流、欠压、过温保护,自动限流保护。
显示与操作:7英寸触摸屏,显示电流、电压、功率、谐波畸变率等;支持本地/远程操作。
通讯与监控:RS485接口(Modbus-RTU),支持后台数据库;可选物联网云平台服务。
环境条件:运行温度:-25℃~45℃;储存/运输温度:-40℃~70℃;相对湿度:20%~95%(无凝露);海拔≤1000m。
安装与防护:安装方式:机架式(APF3/APF4-xxx/0.4M)、壁挂式(APF4-xxx/0.4B);防护等级:IP20;散热方式:强制风冷。
3.选型表(含市场指导价)
| 产品型号 |
安装方式 |
额定容量 |
市场指导价(元) |
| -APF3-50/0.4M |
机架式 |
50A |
17000 |
| -APF3-75/0.4M |
机架式 |
75A |
23500 |
| -APF3-100/0.4M |
机架式 |
100A |
25000 |
| -APF3-150/0.4M |
机架式 |
150A |
35000 |
| -APF3-200/0.4M |
机架式 |
200A |
45000 |
| -APF4-50/0.4M |
机架式 |
50A |
17000 |
| -APF4-75/0.4M |
机架式 |
75A |
23500 |
| -APF4-100/0.4M |
机架式 |
100A |
25000 |
| -APF4-150/0.4M |
机架式 |
150A |
35000 |
| -APF4-200/0.4M |
机架式 |
200A |
45000 |
| -APF4-50/0.4B |
壁挂式 |
50A |
17000 |
| -APF4-75/0.4B |
壁挂式 |
75A |
23500 |
| -APF4-100/0.4B |
壁挂式 |
100A |
25000 |
| -APF4-150/0.4B |
壁挂式 |
150A |
35000 |
| -APF4-200/0.4B |
壁挂式 |
200A |
45000 |
| -HMI-A01-7 |
人机界面 |
/ |
1900 |
(二)CAPF4系列(民用型)
1.核心特点
专为民用场景设计,滤波率≥90%(负载谐波含量≥30%时);支持2~51次谐波治理(25次以上需特别要求),单机/并联运行;过温自动降额运行,防护等级IP20,适配民用建筑配电环境。

电气特征:系统电压:线电压400V(±15%);频率:50Hz(±5%)。
补偿容量:50A、75A、100A、125A、150A、200A(可定制)。
动态电流:1.2倍额定容量(1min)。
响应时间:瞬时响应≤100μs,全响应≤10ms。
安装方式:机架式;进线方式:后进线;支持人机界面操作。
运行方式:支持单机运行,常规支持8台并联运行(特殊要求可定制)。
执行标准:JB/T 11067-2011《低压有源电力滤波装置》,DL/T 1796-2017《低压有源电力滤波器技术规范》。
3.选型表(含市场指导价)
| 产品型号 |
安装方式 |
额定容量 |
市场指导价(元) |
| -CAPF4-50/0.4M |
机架式 |
50A |
13500 |
| -CAPF4-75/0.4M |
机架式 |
75A |
18000 |
| -CAPF4-100/0.4M |
机架式 |
100A |
20000 |
| -CAPF4-125/0.4M |
机架式 |
125A |
25000 |
| -CAPF4-150/0.4M |
机架式 |
150A |
28000 |
| -CAPF4-200/0.4M |
机架式 |
200A |
35000 |
| -HMI-A01-7 |
人机界面 |
/ |
1900 |
二、静止无功补偿模块(SVG/CSVG系列)
静止无功补偿模块(SVG)是新一代无功补偿装置,并联于电网中作为可变无功电流源,可灵活补偿容性/感性无功,抑制谐波,解决传统电容投切补偿的谐波干扰问题。

(一)SVG系列(工业/通用型)
1.核心特点
支持容性/感性无功补偿、三相不平衡校正,功率因数可设定;动态响应快,瞬时响应≤100μs,全响应≤10ms;具备多重保护功能,支持单机/并联运行,可配置物联网云平台监控;电容耐压可选480V/525V(三相)、280V/300V(单相),绝缘等级H级。
2.技术参数
电气特征:系统电压:AC400V(±10%);频率:50/60Hz(±5%)
性能指标:补偿容量:30kvar、50kvar、75kvar、100kvar(可定制);电抗率:7%、14%
保护功能:过压、过流、欠压、过温保护,自动限流至100%额定输出
显示与操作:7英寸触摸屏,显示电流、电压、功率、功率因数等;支持本地/远程操作
通讯与监控:RS485接口(Modbus-RTU),支持后台数据库;可选物联网云平台服务
环境条件:运行温度:-25℃~45℃;储存/运输温度:-40℃~70℃;相对湿度:20%~95%(无凝露);海拔≤1000m
安装与防护:安装方式:机架式(SVG3/SVG4-xxx/0.4M)、壁挂式(SVG4-xxx/0.4B);防护等级:IP20;散热方式:强制风冷

| 产品型号 |
安装方式 |
额定容量 |
市场指导价(元) |
| -SVG3-30/0.4M |
机架式 |
30kvar |
17000 |
| -SVG3-50/0.4M |
机架式 |
50kvar |
19000 |
| -SVG3-75/0.4M |
机架式 |
75kvar |
23500 |
| -SVG3-100/0.4M |
机架式 |
100kvar |
25000 |
| -SVG4-30/0.4M |
机架式 |
30kvar |
17000 |
| -SVG4-50/0.4M |
机架式 |
50kvar |
19000 |
| -SVG4-75/0.4M |
机架式 |
75kvar |
23500 |
| -SVG4-100/0.4M |
机架式 |
100kvar |
25000 |
| -SVG4-50/0.4B |
壁挂式 |
50kvar |
19000 |
| -SVG4-75/0.4B |
壁挂式 |
75kvar |
23500 |
| -SVG4-100/0.4B |
壁挂式 |
100kvar |
25000 |
| -HIMI-G01-7 |
人机界面 |
/ |
1900 |
(二)CSVG4系列(民用型)
1.核心特点
专为民用场景设计,滤波范围覆盖3、5、7、9、11、13次谐波;支持单机/并联运行(常规支持8台,可定制),过温自动降额运行;操作简便,配备开机/关机/复位按键,可选配7寸/10寸触摸屏。
2.技术参数(差异化部分)
电气特征:系统电压:线电压400V(±15%);频率:50Hz(±5%)
性能指标:补偿容量:30kvar、50kvar、75kvar、100kvar、125kvar、150kvar(可定制);动态电流:1.2倍额定容量(1min)
响应时间:瞬时响应≤100μs,全响应≤10ms
安装与操作:安装方式:机架式;进线方式:后进线;防护等级:IP20(可定制更高等级)
执行标准:DL/T 1216《配电网静止同步补偿装置技术规范》

3.选型表(含市场指导价)
| 产品型号 |
安装方式 |
额定容量 |
市场指导价(元) |
| -CSVG4-30/0.4M |
机架式 |
30kvar |
13500 |
| -CSVG4-50/0.4M |
机架式 |
50kvar |
15000 |
| -CSVG4-75/0.4M |
机架式 |
75kvar |
18000 |
| -CSVG4-100/0.4M |
机架式 |
100kvar |
20000 |
| -CSVG4-125/0.4M |
机架式 |
125kvar |
25000 |
| -CSVG4-150/0.4M |
机架式 |
150kvar |
28500 |
| -HIMI-G01-7 |
人机界面 |
/ |
1900 |
三、低压串联电抗器(带电容器)
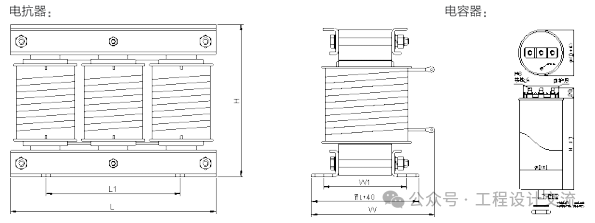
低压串联电抗器与电容器配置组成补偿回路,兼具低损耗、抗谐波、高线性、低噪音特点,用于抑制谐波、稳定电抗值,适配低压无功补偿系统。
(一)核心特点
铁芯采用优质低损耗冷轧取向硅钢片,芯柱分段设置气隙(环氧玻璃布板间隔),确保电抗值稳定;线圈采用耐高温漆包线绕制,排列紧密,无外层绝缘层,散热性能优异;支持水平/垂直安装,配备温度控制端子(110℃~120℃过热断开,常闭型);绝缘等级H级(180℃),电抗率可选7%、14%,适配不同谐波治理需求。
(二)技术参数
电气特征:系统电压:400V;额定绝缘水平:3kV/min;电抗率:7%、14%
运行性能:长期运行电流:1.35倍额定电流(工频+谐波);电抗值线性度:1.8倍额定电流下≥0.95(任意两相差值≤±3%)
温升与噪声:铁芯温升≤85K,线圈温升≤95K;运行噪声≤65dB
环境条件:运行温度:-25℃~+45℃;相对湿度≤90%(无有害气体、易燃易爆物品);通风良好;海拔≤2000m(超海拔需降容)
耐温等级:H级(180℃)以上

| 产品型号 |
补偿类型 |
额定电压 |
适配容量 |
电抗率 |
市场指导价(元) |
| CKSG-0.45-0.7-7 |
共补 |
450V |
10kvar |
7% |
770 |
| CKSG-0.45-1.05-7 |
共补 |
450V |
15kvar |
7% |
820 |
| CKSG-0.45-1.4-7 |
共补 |
450V |
20kvar |
7% |
920 |
| CKSG-0.45-1.75-7 |
共补 |
450V |
25kvar |
7% |
950 |
| CKSG-0.45-2.1-7 |
共补 |
450V |
30kvar |
7% |
990 |
| CKSG-0.45-2.8-7 |
共补 |
450V |
40kvar |
7% |
1200 |
| CKSG-0.45-3.5-7 |
共补 |
450V |
50kvar |
7% |
1500 |
| CKSG-0.45-4.2-7 |
共补 |
450V |
60kvar |
7% |
1800 |
| CKDG-0.25-0.23×3-7 |
分补 |
250V |
10kvar |
7% |
800 |
| CKDG-0.25-0.35×3-7 |
分补 |
250V |
15kvar |
7% |
920 |
| CKDG-0.25-0.47×3-7 |
分补 |
250V |
20kvar |
7% |
1000 |
| CKDG-0.25-0.58×3-7 |
分补 |
250V |
25kvar |
7% |
1200 |
| CKDG-0.25-0.7×3-7 |
分补 |
250V |
30kvar |
7% |
1300 |
| CKDG-0.25-0.93×3-7 |
分补 |
250V |
40kvar |
7% |
1600 |
| CKSG-0.48-0.7-7 |
共补 |
480V |
10kvar |
7% |
820 |
| CKSG-0.48-1.05-7 |
共补 |
480V |
15kvar |
7% |
860 |
| CKSG-0.48-1.4-7 |
共补 |
480V |
20kvar |
7% |
950 |
| CKSG-0.48-1.75-7 |
共补 |
480V |
25kvar |
7% |
1000 |
| CKSG-0.48-2.1-7 |
共补 |
480V |
30kvar |
7% |
1050 |
| CKSG-0.48-2.8-7 |
共补 |
480V |
40kvar |
7% |
1250 |
| CKSG-0.48-3.5-7 |
共补 |
480V |
50kvar |
7% |
1680 |
| CKSG-0.48-4.2-7 |
共补 |
480V |
60kvar |
7% |
1900 |
| CKDG-0.28-0.23×3-7 |
分补 |
280V |
10kvar |
7% |
850 |
| CKDG-0.28-0.35×3-7 |
分补 |
280V |
15kvar |
7% |
950 |
| CKDG-0.28-0.47×3-7 |
分补 |
280V |
20kvar |
7% |
1050 |
| CKDG-0.28-0.58×3-7 |
分补 |
280V |
25kvar |
7% |
1280 |
| CKDG-0.28-0.7×3-7 |
分补 |
280V |
30kvar |
7% |
1350 |
| CKDG-0.28-0.93×3-7 |
分补 |
280V |
40kvar |
7% |
1650 |
| CKSG-0.525-1.4-14 |
共补 |
525V |
10kvar |
14% |
950 |
| CKSG-0.525-2.1-14 |
共补 |
525V |
15kvar |
14% |
1050 |
| CKSG-0.525-2.8-14 |
共补 |
525V |
20kvar |
14% |
1250 |
| CKSG-0.525-3.5-14 |
共补 |
525V |
25kvar |
14% |
1520 |
| CKSG-0.525-4.2-14 |
共补 |
525V |
30kvar |
14% |
1800 |
| CKSG-0.525-5.6-14 |
共补 |
525V |
40kvar |
14% |
2100 |
| CKSG-0.525-7-14 |
共补 |
525V |
50kvar |
14% |
2400 |
| CKSG-0.525-8.4-14 |
共补 |
525V |
60kvar |
14% |
2600 |
| CKDG-0.3-0.47×3-14 |
分补 |
300V |
10kvar |
14% |
1050 |
| CKDG-0.3-0.7×3-14 |
分补 |
300V |
15kvar |
14% |
1300 |
| CKDG-0.3-0.94×3-14 |
分补 |
300V |
20kvar |
14% |
1650 |
| CKDG-0.3-1.16×3-14 |
分补 |
300V |
25kvar |
14% |
2100 |
| CKDG-0.3-1.4×3-14 |
分补 |
300V |
30kvar |
14% |
2300 |
| CKDG-0.3-1.87×3-14 |
分补 |
300V |
40kvar |
14% |
2600 |
四、选型逻辑与注意事项
(一)选型关键注意事项
谐波治理需求:优先选APF/CAPF系列(针对性滤除谐波),搭配低压串联电抗器提升抗谐波能力;
无功补偿需求:优先选SVG/CSVG系列(动态补偿无功,兼顾三相不平衡校正)。
场景适配:工业场景选APF/SVG系列,民用场景选CAPF4/CSVG4系列(性价比更高)。
安装条件:空间充足选机架式,空间受限选壁挂式(仅APF4/SVG4系列支持)。
容量匹配:根据系统谐波含量、无功缺口计算额定容量,预留20%余量。
电压适配:确保元器件额定电压与系统电压一致(如400V系统选450V/480V元器件)。
电抗率选择:7%电抗率适配3次谐波为主场景,14%适配5次及以上谐波场景。
环境适配:户外安装需确认防护等级,高海拔(>1000m)需按1%/100m降容。
通讯兼容:需远程监控时,确认设备支持Modbus-RTU协议,按需配置物联网云平台。
(二)产品核心差异汇总
| 产品类别 |
核心功能 |
适配场景 |
价格区间(元) |
| APF系列 |
谐波治理+无功补偿+三相不平衡校正 |
工业高谐波场景(如变频器、机床) |
17000-45000 |
| CAPF4系列 |
民用谐波治理+基础无功补偿 |
民用建筑(如写字楼、小区) |
13500-35000 |
| SVG系列 |
动态无功补偿+谐波抑制+三相不平衡校正 |
工业动态负荷场景(如电机频繁启停) |
17000-25000 |
| CSVG4系列 |
民用动态无功补偿+基础谐波抑制 |
民用建筑配电系统 |
13500-28500 |
| 低压串联电抗器 |
抗谐波、稳定电抗值、配合电容补偿 |
所有无功补偿+谐波治理系统配套 |
770-2600 |
|