|
用于机床切削液过滤的几种重力式纸带过滤机结构探讨用于机床切削液冷却液过滤的纸带过滤机,比较普及的形式是以冷却液自重形成的压强透过滤纸完成过滤的,而靠负压提高流量的真空过滤机在国内用量不多。国内常用靠液体自重过滤的典型纸带过滤机,无外乎平卧型、鼓型。近年又出现了弧型纸带过滤机。因为我们讨论的是过滤机的结构,所以在不考虑滤纸过滤系数和介质粘度系数因素的条件下,过滤机的流量与液体所通过滤纸的面积和液体作用在滤纸表面的平均压强的乘积成正比。滤纸面积取决于设备大小,压强产生于液体的自重,在设备体积受限情况下,根据上式关系,只有提高作用于滤纸的液体高度,才能有效提高过滤机的流量。所以怎样提高液体在过滤前缓存高度就是研究过滤机结构的焦点。 










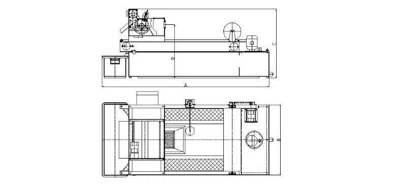
一. 平卧型纸带过滤机原始型纸带过滤机出自于平卧型,这种过滤机滤纸支撑面是由柔性金属编织网构成,金属网不仅支撑滤纸,同时由动力驱动其行走并带动滤纸行走,从而更新过于堵塞的滤纸。柔性金属编织网靠自重与一定量的冷却液重量的叠加形成的窝形底,这个窝形底就是过滤前液体缓存的区域。金属编织网有限的柔性限制了窝形底的深度,使得作用在滤纸表面的缓存液体高度度值h非常有限,即使h可以继续增加,从物理特点来看,如果滤纸以同样的窝形附贴在支撑金属网上,过大的h值势必会使滤纸产生以窝底为中心向四周放射形的皱褶,zui终导致滤纸跑偏、紊乱。所以这种结构的限制确定了此种过滤机难以形成太大的流量,除非以庞大的体积牺牲整体加工系统总体布局为代价。另外,滤纸是浮铺在金属网表面上的,金属网运行时是靠与滤纸之间的摩擦力带动滤纸行走的,当滤纸面承载较小时,摩擦力不足以带动滤纸轴转动,会产生相对滑动现象,即运纸机构行走而滤纸不走。归纳起来说,与其他类型相比在同流量条件下,平卧型型过滤机占地面积较大。由于此类过滤机结构、操作都相对简单,加之其属于早期技术相对成熟产品,故在国内普及量较大。
二. 鼓型纸带过滤机为了减小占地面积,增加过滤前液体缓存高度,出现了鼓型纸带过滤机因其结构主体是转鼓,故而得名。转鼓是由两片相连的辊轮组成,由滤纸支撑网相连的两条套筒滚子链骑压在转鼓的两个轮缘上,动力轴上的链轮驱动链子运行时带动转鼓转动,压在链子与轮缘之间的滤纸也随之行走,从而实现输出污纸的功能。从鼓型纸带过滤机结构形式看,转鼓使滤纸形成半月形腔体,使得作用在滤纸表面的缓存液体高度度值h有了很大提高,因此液体过滤流量有了显著提高。相对同等流量平卧式纸带过滤机,鼓型纸带过滤机减小了占地面积,虽然增加了高度,但高度的增加对于大多数用户来说并不敏感。为了防止液体在转鼓边缘处侧漏,在浮动的传动轴处设置了张紧簧,张紧簧的拉力作用,使链子及滤纸紧压在轮缘上。随着转鼓内液体高度增加,作用在滤纸支撑面的压力增大,骑压在轮缘的链子、滤纸有可能离开轮缘而产生缝隙造成液体侧漏,影响过滤质量,所以张紧簧的张力必须大于液体极限高度时的重力,才不至于产生侧漏。 为了提高缓存液体高度,增加流量,就要尽可能加大滤纸支撑面在转鼓上的包角α,这也势必增加污纸输出口的高度。实践证明,当污纸输出高度高于转鼓中心轴时,输出的污纸极易附贴在支撑面绞回设备内腔,再则,随着包角α增大,污纸输出口内侧滤纸与垂直面的夹角θ会随之减小,甚至为负值,这样滤纸上的污物很难随滤纸“爬出”,所以在转鼓内积存液体高度的极限是转鼓的半径。实际上,液面高度受许多条件限制,诸如装配工艺、液位电信号反馈设置、转鼓轴端密封等因素,为了权衡这些因素,协调设备的总体综合机能,缓存液面高度只能低于转鼓中心一定尺寸方可实现正常运行。由此看来,鼓型纸带过滤机转鼓中心以上部分难以利用似乎是一种空间资源的浪费。





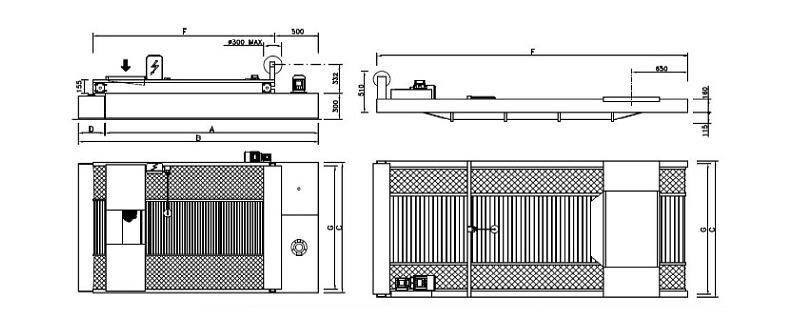
三. 弧型纸带过滤机 1. 弧型纸带过滤机结构形式弧型纸带过滤机的基型取自于平卧式纸带过滤机纸带过滤机,弧型纸带过滤机在主体框架两侧安置了弧型导轨,滤纸支撑面沿导轨下缘分布形成谷底,弧型导轨的曲率确定了缓存液体深度。为了提高缓存液体高度,增加流量,就要尽可能加大弧型导轨的曲率,随着弧型导轨的曲率增大,污纸输出口内侧滤纸与垂直面的夹角θ会随之减小,θ值过小时滤纸上的污物很难随滤纸“爬出”污纸输出口,所以弧型导轨的曲率也不能无限制增大。根据污物颗粒吸附力的不同,弧形导轨圆心角取80~110°较为适宜。同属于以强制手段形成液体缓存空间,相对鼓型纸带过滤机而言,谷型纸带过滤机省去了转鼓的上部分空间,因此,谷型纸带过滤机综合了平卧型纸带过滤机和鼓型纸带过滤机的优点。 2.侧边密封形式既然滤纸随支撑面形成谷型就存在侧边密封问题。首先导轨与主体框架是密封的,剩下的只是支撑面、滤纸、导轨之间的密封问题。 (1)橡胶垫在滤纸上面这种密封形式是将橡胶密封垫安置在弧形导轨下面,由滤纸支撑面将滤纸压贴在橡胶密封垫下表面,我们且称之为“上柔下刚式”,这里的上、下是以滤纸为界限的。因为橡胶密封垫固定不动,所以这种密封形式简单,容易实现。目前市场出现的谷型纸带过滤机就是此种密封形式过滤机。此种密封形式过滤机运纸方式是由滤纸支撑面带动滤纸行走,滤纸行走时要克服与橡胶垫之间的摩擦阻力,在橡胶面滑行,很显然,刚性的滤纸支撑面与滤纸之间的摩擦系数远小于滤纸与柔性的橡胶垫之间的摩擦系数,所以理论上滤纸支撑面行走时是不可能带动滤纸行走的。解决方式是减小橡胶密封垫的宽度从而减小与滤纸的接触面,甚至是线接触,同时减小支撑面、滤纸、橡胶垫三者之间的压力。这样做势必影响密封效果,带来容易侧漏的不利因素。即使如此,它的运纸过程也不是十分稳定可靠的,这是此种密封形式的缺陷。 (2)橡胶垫在滤纸下面这种密封形式是将橡胶密封垫安置在滤纸下面,由滤纸支撑面将橡胶密封垫、滤纸压贴在弧形导轨下表面,我们称之为“上刚下柔式”。这种密封形式要求橡胶密封垫必须与滤纸支撑面随动,即当滤纸支撑面运行时带动滤纸同步行走。因为柔性的橡胶垫与滤纸之间的摩擦系数远大于滤纸与刚性的弧形导轨之间的摩擦系数,所以此种密封形式的运纸功能十分稳定可靠。 3.运纸夹压形式滤纸在滤纸支撑面与导轨间需要一定的夹压力才能保证液体不侧漏同时实现运纸功能。 运纸夹压有如下三种形式: (1)上下固定式导轨固定在主体框架两侧,撑张滤纸支撑面的前后轴固定,这就形成了上下固定的夹压形式。这种形势在设备装配时需要调整前或后轴的位置,使滤纸支撑面张紧后固定,这个张紧力必须大于极限缓存液体的重力,才能避免侧漏。但是由于承受张紧与液体重力叠加力的链子在使用一段时间后会产生塑性变形而拉长,zui终还会产生侧漏,还需再次调整张紧力,如此反复直至材料冷作硬化极限,这是上下固定式的缺陷。
(2)上固定下浮动式导轨固定在主体框架两侧,撑张滤纸支撑面的前或后轴浮动并以拉簧张紧,受拉簧张紧力作用,滤纸支撑面将滤纸压贴在固定上导轨的下弧面。拉簧的张紧力必须大于极限缓存液体的重力,才能避免侧漏。对比上下固定式,上固定下浮动运纸夹压形式避免了由于链子塑性变形产生的侧漏现象。 (3)上浮动下固定式 撑张滤纸支撑面的前后轴固定,由压簧压力作用于浮动的上导轨,并通过上导轨施压于滤纸、支撑面,将支撑面张紧。设备工作时,因为夹压力与液体重力方向一致,所以支撑面受力为压簧压力与液体重力的叠加,而液体重力通过滤纸只作用于滤纸支撑面,那么滤纸受到的夹压力就是压簧的压力,这个压力恒定的,也就是说无论缓存腔内有多少液体,上浮动导轨通过密封垫始终以恒定的压力紧压在滤纸上,减少了侧漏之虞。因此上浮动下固定式应理想的为结构。
4.上浮动导轨的形状前面说过,上浮动下固定式结构使滤纸受到的夹压力是恒定的,但这个恒定只是压力的总和。虽然压在滤纸面上的导轨是浮动的,但是导轨本身的形状是刚性的,所以这个压力在导轨各处的分布是不均匀的。没有液体时支撑面和在自重作用下呈悬链线形状,有部分液体时,液体上部为曳物线,液体下部为液力底线(因为没有描述相应线形方程式故暂且称之为液力底线),从感性分析,有液体时线形较无液体时的悬链线底部下凸出,两侧内收敛,而且线形是随液体高度变化而变化的。因为我们关心的是侧漏问题,所以根据分析,导轨的设计形状应该与液力底线相吻合,这样才能够使导轨作用在滤纸各处压力均匀,但是由于液力底线是变化的,所以无论导轨形状如何,只能在某一固定的液位高度才能达到压力均匀的效果,那么这个高度就应该取预计设计极限高度。我们分析线形及变化的目的在于对此有一个感性认识,在实际中,我们要把导轨做成诸如悬链线或液力底线形状很困难,也没必要,所以一般以圆弧代用即可。综合上述分析,谷型纸带过滤机的侧边密封形式采用“上刚下柔式”,运纸夹压形式采用上浮动下固定式应该是的设计思路,那么如何去实现呢?
|